De gemeente heeft het voormalig schoolgebouw aan de Hollands Tuin 77 in 2024 gesloopt. Woonbron gaat op die locatie 38 huurappartementen bouwen in het sociale segment.
Betaalbare woningen
Er is een grote vraag naar betaalbare woningen. Daarom gaat Woonbron hier 38 betaalbare huurappartementen bouwen in het sociale segment. We zijn inmiddels gestart met het maken van een ontwerp bouwplan en delen deze informatie graag met u.
Fijn wonen
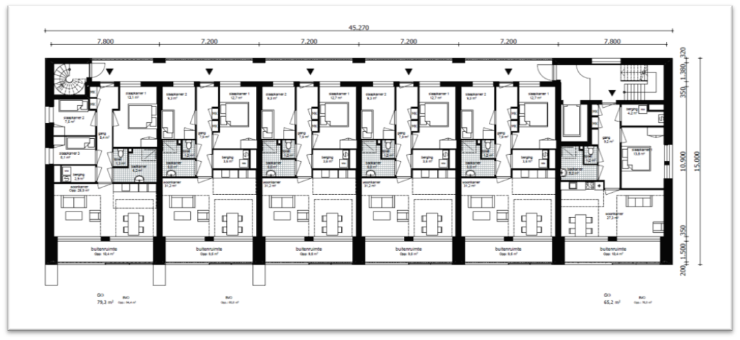
Er komen 32 driekamerappartementen en 6 tweekamerappartementen. De appartementen op de etages hebben een balkon over de breedte van de woonkamer en zijn gericht op het zuiden, met uitzicht op het park. De woningen op de begane grond krijgen een tuin. Elke woning heeft een inpandige berging en een individuele fietsenberging op de begane grond.
Duurzaam bouwen
Het gaat om een gebouw langs het water met 6 verdiepingen, 1 lift, 2 trappenhuizen, geluidwerende maatregelen, groene daken, groene gevel en gierzwaluw- en vleermuiskasten in de gevel. Het gebouw is grotendeels opgetrokken uit baksteen, met hier en daar accenten van beton. Het gebouw is gasloos en wordt aangesloten op het warmtenet.
Voor wie zijn de woningen?
Woonbron bouwt deze woningen voor de sociale verhuur, net onder de liberalisatiegrens. Deze grens is de maximale huur van een sociale huurwoning en wordt jaarlijks door de Rijksoverheid vastgesteld. In 2025 gaat het om een bedrag van € 900,07 per maand.
Als de woningen geadverteerd worden via Woonnet Rijnmond, staan daar ook de huurprijzen bij én de voorwaarden over het aantal personen en het inkomen.

Planning op hoofdlijnen
Voorjaar 2024: sloop school en bouwplan definitief
Najaar 2024: gemeente legt voorbelasting zandpakket aan
2e kwartaal 2025: verwachte start bouw
Medio 2026: adverteren woningen via Woonnet Rijnmond
Eind 2026: opleveren woningen